4BR/4BTH workforce housing for sale
Benefits of 4 Bedroom 4 Bathroom Workforce Housing:
One of the main benefits of 4-bedroom, 4-bathroom workforce housing is affordability. It provides working-class families with the opportunity to live in a spacious house without breaking the bank. Additionally, it has been shown that employees who live closer to their place of work are more productive, leading to increased job satisfaction and better work-life balance.
Another benefit of living in 4-bedroom, 4 bathroom workforce housing is that it reduces commuting time, providing families with more time to spend with their loved ones and engage in other activities.
CONTACT US NOW
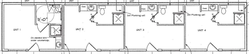
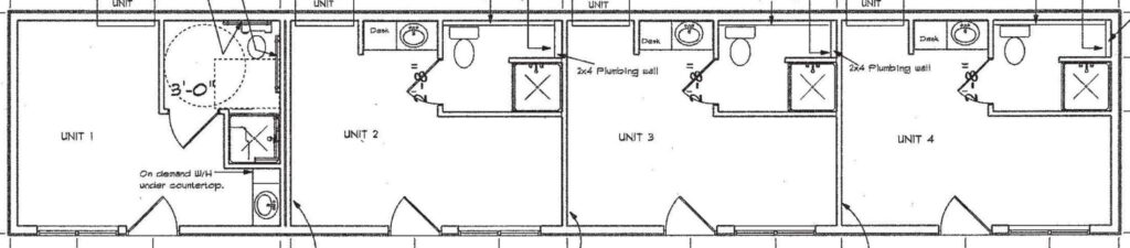
4 PLEX EFFICIENCY WORKFORCE HOUSING SOLUTIONS
4 INDIVIDUAL UNITS PER BUILDING- READY FOR OCCUPANCY
BUILDING: 13′ 6″ X 68′
UNIT: APPROX 230 SQUARE FEET EACH
*** 4 SEPARATE INDEPENDENT ROOMS*
4 INDIVIDUAL UNITS
INDEPENDENT CLIMATE CONTROL
EXTERIOR ENTRANCES TO EACH UNIT
PRIVATE BATH EACH UNIT
SINGLE OR DOUBLE OCCUPANCY
BUY TODAY! $52,000
AVAILABILITY: 8 BUILDINGS AVAILABLE
FOR ENQUIRIES CONTACT: +1(210)887-2760
CONTACT US NOW











